R3983434 | Residential Plot in Estepona – € 365,000 – 0 beds, 0 baths
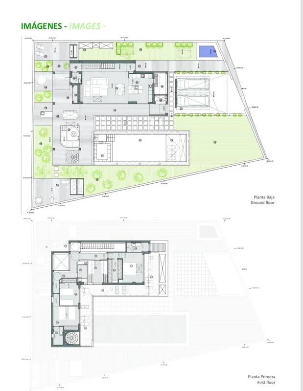
PROJECT of a MODERN CONTEMPORARY VILLA IN SECOND LINE BEACH on a PLOT OF LAND with a surface of 724sqm and a total building area of 320sqm including terraces and possibility to build a basement. Located in the Estepona area, south facing. Only a few steps away from the magnificent local beaches and beach side restaurants. Located only a 5-minute drive to the attractive Puerto de La Duquesa & Torre Guadiaro where you will find all kinds of amenities and leisure areas. Situated in an urbanisation with all supplies and building permits. (INCLUDES PROJECT VISA AND LICENCE).









